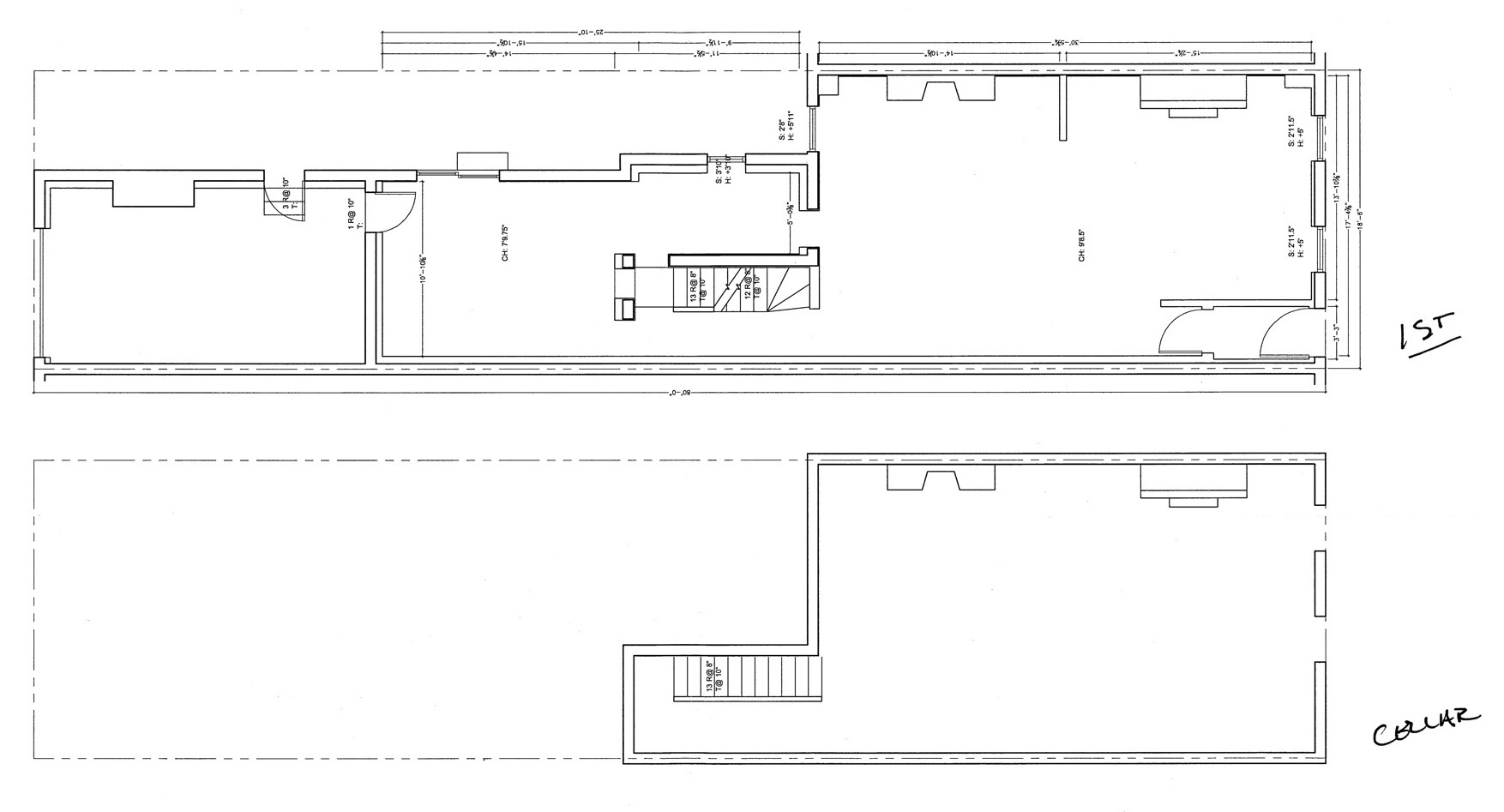
All these rooms and pictures… here’s how they fit together. Below are the architect’s drawings of the current floor layout for each floor followed by a cross section of the house showing the staircase locations.
This cross-section shows the location of the staircases. All of them will move during the renovation. There are additional rooms to the left and right of this cross-section.



If I had a hammer…
I hope all is going well with the reno…post more pics!
LikeLike